
Imate vprašanje?
Obvestilo po e-pošti, ko bo izdelek na voljo
- Opis
- Navodila
- Načini plačila
- Garancija
Trifazni analizator parametrov omrežja TPM-05 - TENSE
Opis
Trifazni večfunkcijski digitalni panelni merilnik TPM-05 je zasnovan za merjenje in spremljanje električnih parametrov v trifaznih sistemih. Naprava omogoča spremljanje napetosti, toka, frekvence, moči in druge napredne analize kakovosti električne energije. S protokolom RS485 ModBus RTU lahko analizator povežete s sistemom SCADA ali drugimi nadzornimi sistemi in na daljavo spremljate izmerjene podatke.
Analizatorji TPM-05 omogočajo celovito analizo energije, vključno z izračunom učinkovitosti, kakovosti energije in stroškov na enoto.
Glavne prednosti
-
Komunikacijski priključek RS485 Modbus RTU (1200-115200 bps)
-
Prikaz harmonskih napetosti in toka do 55. reda
-
Prikaz aktivne moči (P) in jalove moči (Q, induktivne in kapacitivne) po fazah
-
Prikaz navidezne moči (S) in faktorja moči (Cosφ) vsake faze
-
Spremljanje napetosti, toka in frekvence L-N in L-L vsake faze
-
Prikaz skupne energije: uvoz/izvoz aktivne energije (ΣkWh) in jalove energije (ΣkVArh)
-
beleženje najmanjših in največjih vrednosti ter največje porabe
-
2 relejska izhoda in 1 digitalni vhod
-
beleženje dogodkov: prenapetost/podnapetost, preobremenitev, napetostno/tokovno neravnovesje, THD-I, izpadi napajanja
-
Realni čas in datum (RTC)
-
Z geslom zaščiten meni
Tehnične specifikacije
-
Napajanje: glede na vrsto namestitve (običajno 3 × 230/400 VAC)
-
Priključek: priključni blok
-
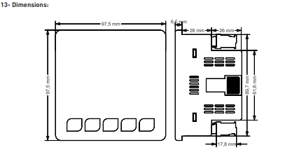
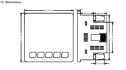
Dimenzije plošče: standardno 72 × 72 mm ali glede na model
-
Natančnost merjenja: glede na harmonske in proizvajalčeve parametre
-
Merilni tokovni transformatorji: 60/5 do 1500/5 A ali enakovredni, priporočljivo
-
Beleženje podatkov in integracija v sisteme SCADA prek ModBus RTU
Uporaba
Analizator TPM-05 je primeren za:
-
industrijske distribucijske in proizvodne linije
-
poslovne stavbe, šole, bolnišnice
-
spremljanje kakovosti in porabe energije
-
spremljanje učinkovitosti električne opreme
Spletno plačilo s kartico - po zaključku naročila boste preusmerjeni na plačilni prehod, potrditev plačila bo poslana na vaš e-mail
COD - plačilo plačate po plačilnem nalogu vozniku prevoznika
Z bančnim nakazilom- najkasneje naslednji delovni dan na vaš e-mail prejmete avansni račun, na katerem je številka računa, ki jo boste vpisali ob plačilu.
Na predračun - ta možnost plačila je na voljo partnerjem, ki imajo z našim podjetjem podpisano okvirno pogodbo.
Če želite uporabiti zadnja 2 načina, pokličite našega upravitelja in dal vam bo navodila, kako prejeti račun z ali brez DDV.
Elektro oprema, ki jo dobavljamo, ustreza visokim standardom kakovosti, ima 24-mesečno garancijo in izpolnjuje vse zahteve EU.
V primeru reklamacije se vračilo blaga ne zaračuna.
