
Obvestilo po e-pošti, ko bo izdelek na voljo
- Opis
- Navodila
- Načini plačila
- Garancija
Nadzor in zaščita trifazne potopne črpalke, največji tok 60 A, 260 V-470 V AC, napetost.
Elektrode (senzorji nivoja tekočine) niso vključene.
Spremljanje največjega in najmanjšega toka in napetosti, spremljanje prisotnosti vode, zagon zvezda/trojkotnik, faktor zagonskega toka, nastavitev časa zagona, časovniki za zamik vklopa/izklopa, časovnik vrnitve v obratovanje, vhodi za tri senzorje nivoja in plavajoče stikalo, spremljanje asimetrije in zaporedja faz, 4x20-znakovni zaslon LCD, zaščita pred suhim tekom in samodejno cikliranje.
Ta krmilnik je zasnovan za avtomatizacijo zaščite in nadzora potopnih vrtalnih in drugih vodnih črpalk. Glavne značilnosti tega krmilnika so:
-
Velik, lahko berljiv zaslon za informacije in nastavitev parametrov delovanja.
-
Intuitivni vmesnik
-
Gumbi za ročno upravljanje črpalke
-
Spremljanje največje in najmanjše napetosti med fazami (z nastavljivim časom in nazivnimi vrednostmi)
-
Spremljanje največjega in najmanjšega toka (z nastavljivim časom in nazivnimi vrednostmi)
-
Nastavitev časovnega intervala in faktorja preobremenitve za preklopni tok
-
Ni treba priključiti nevtralne žice
-
Spremljanje zaporedja in asimetrije faz (z nastavljivim časom in nazivnimi vrednostmi)
-
Vgrajen zagonski rele zvezda-delta za zmanjšanje zagonskih tokov
-
Nastavljive vrednosti faktorja moči za zaščito pred suhim tekom, tudi če se ne uporabljajo senzorji nivoja vode
-
Nastavljiva občutljivost senzorja glede na parametre vode
-
Nastavljiv odzivni čas za senzorje nivoja
-
Impulzno napajanje za senzorje nivoja - znatno podaljša življenjsko dobo senzorja
-
Prilagodite frekvenco aktiviranja črpalke in prihranite čas delovanja tudi med izpadom električne energije
-
Shranjevanje dnevnika napak v nevolatilni pomnilnik
Tehnični parametri:
-
Delovna napetost: 120 V-290 V AC
-
Delovna frekvenca: 50/60 Hz
-
Delovna temperatura: 0 °C - 55 °C
-
Poraba energije: <4 VA
-
Razpon delovnega toka: 1 A-60 A
-
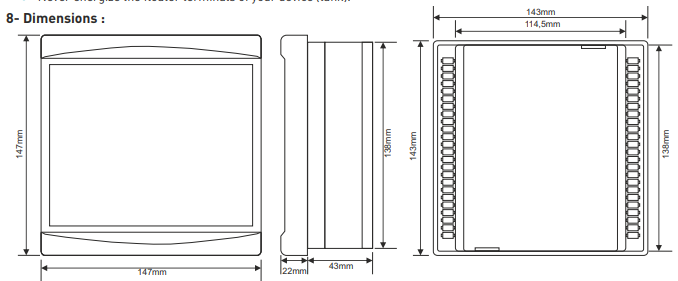
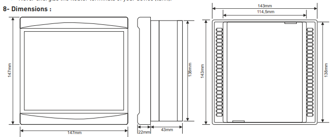
Dimenzije: 139 × 139 mm
-
Vrsta priključka: priključek
-
Teža: 0,6 kg
-
Izhodni kontakt: 5 A, 250 VA
-
Indikator: LCD, LED
-
Prerez kabla: 2,5 mm²
Spletno plačilo s kartico - po zaključku naročila boste preusmerjeni na plačilni prehod, potrditev plačila bo poslana na vaš e-mail
COD - plačilo plačate po plačilnem nalogu vozniku prevoznika
Z bančnim nakazilom- najkasneje naslednji delovni dan na vaš e-mail prejmete avansni račun, na katerem je številka računa, ki jo boste vpisali ob plačilu.
Na predračun - ta možnost plačila je na voljo partnerjem, ki imajo z našim podjetjem podpisano okvirno pogodbo.
Če želite uporabiti zadnja 2 načina, pokličite našega upravitelja in dal vam bo navodila, kako prejeti račun z ali brez DDV.
Elektro oprema, ki jo dobavljamo, ustreza visokim standardom kakovosti, ima 24-mesečno garancijo in izpolnjuje vse zahteve EU.
V primeru reklamacije se vračilo blaga ne zaračuna.
